Kontor / Hamburg ja Partnerid

Asukoht / Veerenni 23, Tallinn

Aasta / 2024-2025

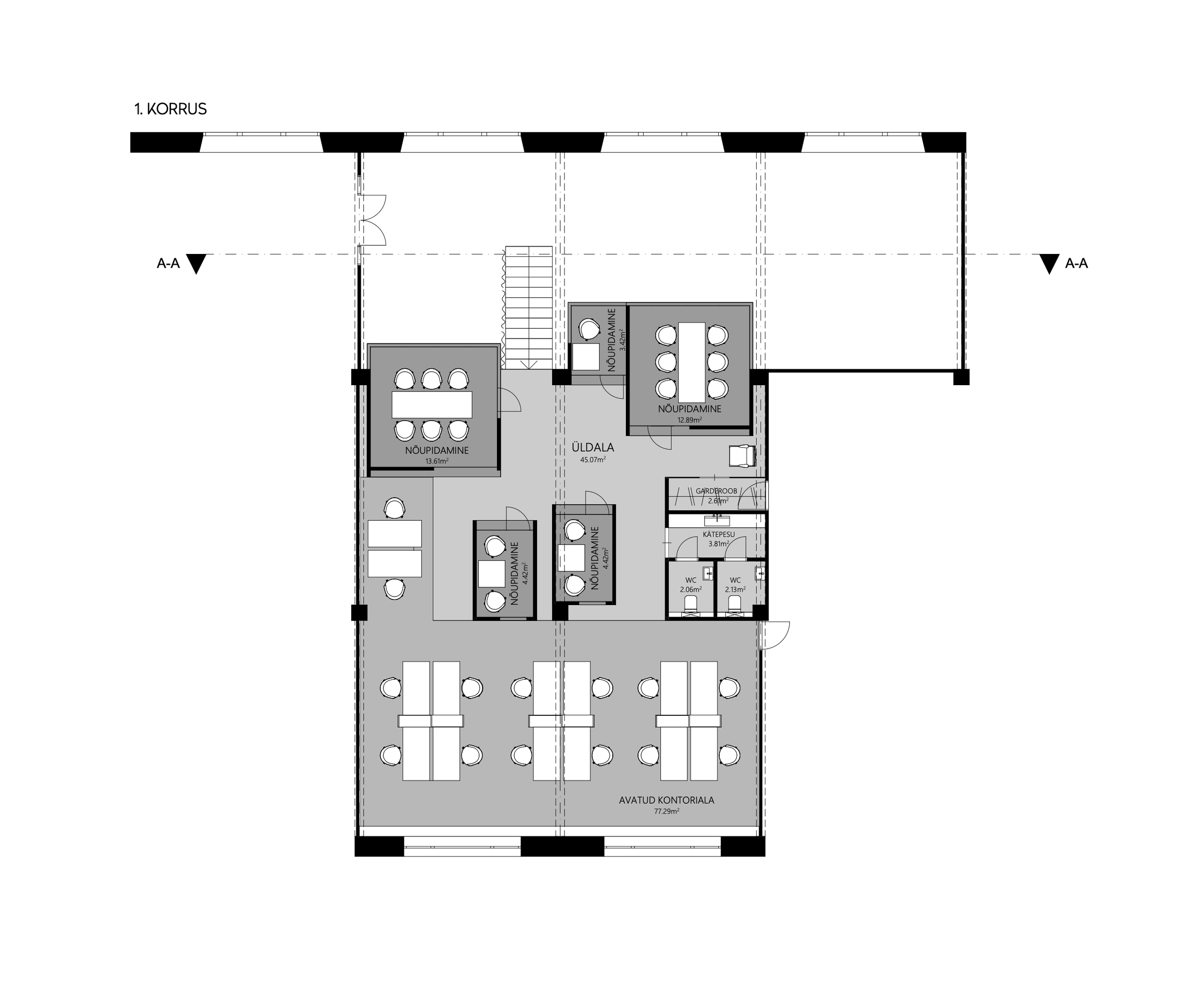
Ruum / 255m2


Sisearhitektuur / Hanna Karits, Ardo Hiiuväin, Eeros Lees

Erimööbli autor / HK stuudio ja Eeva Masso

Ehitaja / Kawe ehitus

Fotod / Tõnu Tunnel

Antud sisearhitektuurse projekti lähteülesanne osutus tavapärasest veidi teistsuguseks. Nimelt lisaks inspireerivalt kõrgele ja mitmekülgsele ruumile, saime tellija poolt sisendiks kasutada H&P poolt 2008 aastal tellitud eelmise kontori eritellimusmööblit, mille omal ajal projekteeris sisearhitekt Eeva Masso.

See on hetk, mil kõikide sisearhitektide kujutluses olevad värsked ning lennukad ideed lahustuvad küsimuste jadas, kuidas ühildada 17 aastat tagasi loodud funktsionaalsused ning materjalid tänasesse keskkonda. Tegu ei ole veel rariteetsesse vääringusse jõudnud eelmise sajandi loomega, kuid sisearhitekti kvaliteetne vormitunnetus on selgelt näha. Lisaks oli raske ettekujutada, kuidas kolletunud MDF mööblist saab tellija soovide kohaselt efektse ning soliidse esindusruumi luua.

Võtsime aega mõtlemiseks, kuid tellija usk meie tiimi ning sügav arhitektuuri fänlus, pani ka meid endid uskuma, et ehk see kõik on tõesti tehtav.

Otsustasime teha taaskasutusest enda tugevuse! Meie lähteülesandeks sai Veerenni ruumide strateegiline planeerimine vastavalt kommunikatsiooni ettevõtte vajadustele. Materjaalsuse ja tunnetusliku kontseptsiooni aluseks sai 17 aastat vanad MDF mööblidetailid, must kõrgläikevärv ning August Künnapu teoste koloriit.

Eeva Masso disainitud raamaturiiuleid kasutasime põhiliselt koosoleku ruumide ülesehituses. Vastandades uut ning vana, kulunud ning klaari, roosat ja rohelist - lõime Hamburg&Partnerile uue kodu.

Me ei pretendeeri täiusele ega steriilsele korrale, vaid eelkõige hubasele ja Hamburgi rahvale tuttavlikule keskkonnale. Fookuses on funktsionaalsus, kerge eklektika ning orgaaniline elu meie loodud süsteemis.

Suurem mõte millega H&P lugu kokku võtta, on mõte, et kui kvaliteetse sisearhitektuurse lahenduse tellimisel on võimalik see 17 aastat hiljem 80% ulatuses taaskasutada, siis oleme säästnud paar konteinerit prügi, oleme tootnud vähem ning töötajad on saanud vanast töökodust kaasa osaliselt tuttava ruumiidentieedi.